リゾートのような洗練
家を建てるにあたって意識されたのは、海外のリゾートのような雰囲気。重厚感のある外観をはじめ、素材の美しさを活かしながら洗練された家をつくり上げました。生活感を感じさせないデザインを実現させていますが、その雰囲気が活きるのは機能性があってこそ。例えば玄関ホールはとてもすっきりした空間ですが、主張しない収納空間があるとともに、洗面台を奥に設けることで出入りの際の行き来を最小限に抑える工夫がなされています。

外観には複数の素材を使用。無機と有機の調和が高級感を演出する。
家を建てるにあたって意識されたのは、海外のリゾートのような雰囲気。重厚感のある外観をはじめ、素材の美しさを活かしながら洗練された家をつくり上げました。生活感を感じさせないデザインを実現させていますが、その雰囲気が活きるのは機能性があってこそ。例えば玄関ホールはとてもすっきりした空間ですが、主張しない収納空間があるとともに、洗面台を奥に設けることで出入りの際の行き来を最小限に抑える工夫がなされています。

外観には複数の素材を使用。無機と有機の調和が高級感を演出する。

玄関ホールは物が少ないすっきりとした空間。

奥には洗面台が。出掛ける前の身支度や帰ってからの手洗いに役立つ。
スタイリッシュな空間をつくるにあたって、まず決定されたのは「モノトーンで構成すること」。特別な日に滞在するホテルのように、生活感のないインテリアを叶えるためには最適な選択でした。全体が重くならないように白とグレーを中心とした中で、デザイン性から採用されたフルフラットキッチンのみをブラックとするバランス感覚が秀逸です。また、石目の床やタイルの組み合わせ、さらに間接照明を施すことで質感を際立たせ、高級感のある空間を実現しています。

ブラックを基調としたフルフラットキッチンがスタイリッシュ。

タイルを組み合わせることでモノトーンでも単調にならない。

南側の窓から入る自然光が癒しを感じさせる。
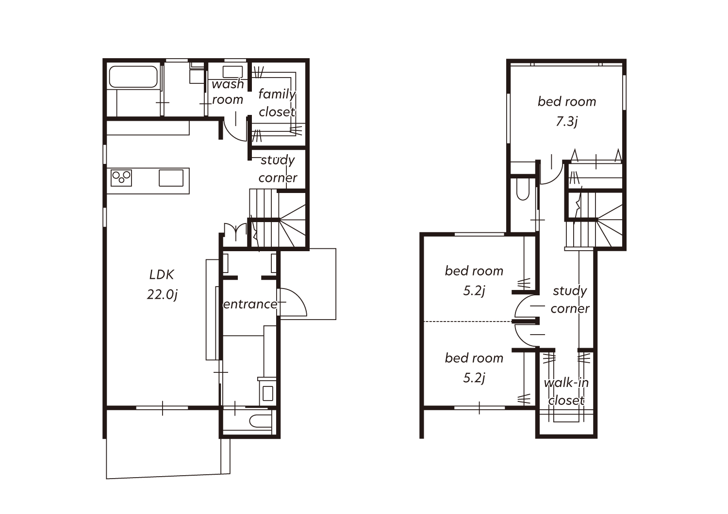
間取りの中で注目したいのが、二つのスタディスペース。ひとつは一階の階段横に、もうひとつは二階ホールに設けられています。現在は、一階は旦那様の書斎、二階はディスプレイコーナーとなっていますが、将来お子様の勉強用にするなどライフスタイルの変化にも対応できるものとなっています。

一階階段横のスペースは書斎として使われている。

二階ホールのカウンター。こちらも広々としたスペース。

ファミリークローゼット前という間取りを活かしディスプレイコーナーに。
ベッドルームは心身ともに休まるような空間を意識してコーディネートしています。枕側となる壁面は、眩しさを感じさせないダークカラーを採用しました。一方で、南側の窓からは自然光がしっかり入るので、朝は気持ちよく目覚めることができます。

広めの面でダークカラーを使用し、落ち着いた印象に。

南側の窓から光が入り、目覚めの時間を心地よく彩る。

バッドルームの一角にはメイクスペースが設けられている。
土地面積:186.54㎡(56.42坪)
施工面積:121.23㎡(36.67坪)
延床面積:118.41㎡(35.81坪)
UA値:0.43(HEAT20 G2グレード)
暮らしは家という土台の上で成り立ちます。間取りも、デザインもその人の存在無くしては本当に良いものは生まれません。住む人の理想に寄り添った設計・デザインをするために、ロータリーハウスでは建築士が要望をじっくりお聞きし、知識と経験をもとにプランを提案します。そして何度もイメージとの齟齬がないか確認します。思い描く理想の暮らしがあるなら、ぜひロータリーハウスでご相談ください。