
回遊動線と一般的な間取りの違いは、主に行き止まりの有無と生活の効率性にあります。
一般的な間取りの多くは、廊下や部屋の突き当りまで行ったら引き返すというような直線的な動線となります。対して回遊動線は住まいの中で行き止まりがなく、複数の部屋や空間をぐるりと周回できる動線設計のことを指します。これにより一つの部屋から他の部屋への移動がスムーズになり、生活や家事の効率が向上します。
お家づくりをする際に家の中の動線をコンパクトにして、家事や暮らしの効率を上げたいと思う方も多いのではないでしょうか。
「料理中のちょっとした空き時間に洗濯機を回したい」「買い物からの帰宅後はすぐにキッチンに食材をしまいたい」
そのように家事効率を高めたいと思っている方におすすめなのが、回遊動線を取り入れた間取りです。回遊動線を取り入れることで暮らしの移動距離も短縮され、家事の負担が減ります。香川県の工務店であるロータリーハウスが回遊動線のメリット・デメリットを事例とともにご紹介します。
回遊動線は、家の中をぐるりと回れる間取りで家事効率を高めることができます。キッチン・洗面・ランドリーの動作がスムーズになり、家事時間が軽減できます。デメリットとしては収納配置やプライバシー設計への配慮が必要です。平屋との相性が良く、暮らしやすさを重視する設計として人気です。

回遊動線と一般的な間取りの違いは、主に行き止まりの有無と生活の効率性にあります。
一般的な間取りの多くは、廊下や部屋の突き当りまで行ったら引き返すというような直線的な動線となります。対して回遊動線は住まいの中で行き止まりがなく、複数の部屋や空間をぐるりと周回できる動線設計のことを指します。これにより一つの部屋から他の部屋への移動がスムーズになり、生活や家事の効率が向上します。
1.家事効率が上がる
回遊動線を取り入れると、家事効率が大幅にアップします。例えば、キッチンと洗面所、ランドリールームが全て近くに配置されていれば、調理中に洗濯を行ったり、片付けをしながら別の作業を進めるというように、家事を効率的に行うことができます。
また、平屋での回遊動線は特に効果的で、階段の上り下りが発生しないことで一層ストレスのない動きが可能になります。
2.家の中での「渋滞」の解消
朝や就寝前の時間は家族の動きが重なり、どうしても慌ただしくなりがちです。
一つの場所に複数の箇所からのアクセスが可能な回遊動線であれば動線が重ならずスムーズに移動ができるため、家の中での渋滞を緩和できます。
3.老後も安心な空間づくりが可能
特定の場所にアクセスする際に複数のルートがあるので移動距離を短くすることができ、高齢になっても暮らしやすさが保たれます。
また、平屋であれば段差を最小限にすることができるため、つまづきも防止され高齢の方だけでなく小さなお子さんにとっても安全な住まいが叶います。
1. 収納スペースが少なくなる
回遊動線を採用する場合、通路としてのスペースが必要になります。通路としての動線上には収納を設けることが難しくなり、収納スペースの位置や容量が制限されてしまいます。収納するものをあらかじめ明確にし、必要十分な収納スペースを確保できるように気を付けましょう。
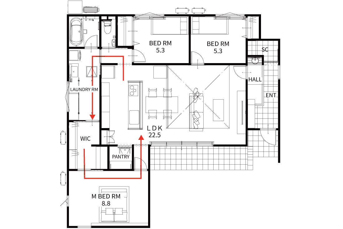
家事楽動線では、キッチンを中心に回遊できる動線を確保し、家事効率を向上させる間取りが多く採用されます。この間取りではキッチンからパントリーと玄関への行き来ができ、洗面コーナー、水回りへとスムーズに移動できる間取りにすることで帰宅後のパントリーへのアクセスが短縮されています。料理、洗濯、収納など異なる家事を一連の流れで行うこともできるので、より時間を有効に使えます。
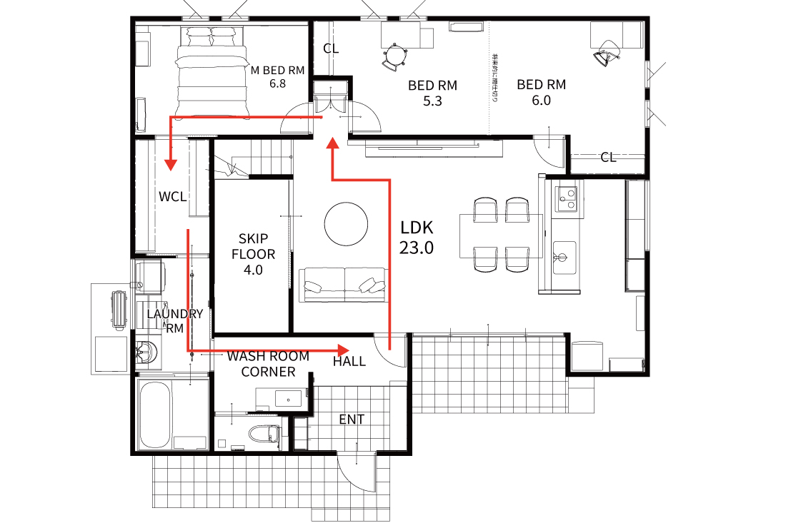
水回りを集中させた間取りの場合、浴室とランドリールームに加え、ファミリークローゼットを隣接して配置することで、洗濯後の動きが効率化されます。洗濯物を洗う、干す、仕分ける、収納する、といった一連の流れが短い距離で完結するのが特徴です。
また、脱衣所と洗面所を分けることで家族それぞれの動線が重複せず、混雑しにくくする工夫もされています。さらに、玄関横に洗面とトイレを配置することで来客の際に気兼ねなく使ってもらうことができます。
平屋はワンフロアで移動が完結するため、回遊性を持たせることで暮らしの快適さが向上します。例えば、玄関からリビング、キッチン、ランドリールームなどをぐるりと回れる動線を設けると、家事が楽になるだけでなく、家族全員が動きやすい環境を整えることができます。このように回遊動線を取り入れた平屋は、住み心地の良さと利便性の両立を目指す間取りとして家づくりの際に人気を集めています。
一方で、注意すべき点としては、スペースを確保するのが難しい場合があることです。回遊動線を優先すると、居室や収納スペースが狭くなってしまうリスクがあるため、全体のバランスを考慮した設計が求められます。設計時にはメリット・デメリットも理解した上で、家族の生活スタイルに合った最適なプランを立てることが必要です。
・日常的な動きに合った動線を計画する
・家族ごとの動きの傾向や将来的な生活の変化を見越して設計する
・遊び場や子供部屋をリビングの近くに設置しやすい動線にする
・廊下を減らし部屋を機能的につなげ、無駄なスペースを減らす
・個々の部屋が狭くなるもしくは家具配置が制限されるため過度に動線を重視しすぎない
理想的な回遊動線を実現するためには、家全体のスペース配分のバランスを検討し建築計画を進めることが大切です。
生活スタイルや家族に合った間取りを検討していきましょう。
回遊動線は室内の移動をスムーズにし、家事効率も暮らしの効率も向上させることができます。一方でデメリットもあるので家づくりに取り入れる場合は家族の暮らし方や動線を相談しながら採用するのがおすすめです。
ロータリーハウスでは年間約100棟を建築しており、経験豊富な建築士との家づくりが可能です。回遊動線を取り入れた間取りを検討する方は、ぜひ建築士にご相談ください。